Tout projet commence par l’écoute. La cliente souhaitait rénover une salle de bain vieillissante et peu fonctionnelle. Ses besoins : optimiser l’espace, choisir des matériaux durables et faciles à entretenir, et créer une ambiance sobre, élégante et intemporelle.
Le cahier des charges et les contraintes du projet
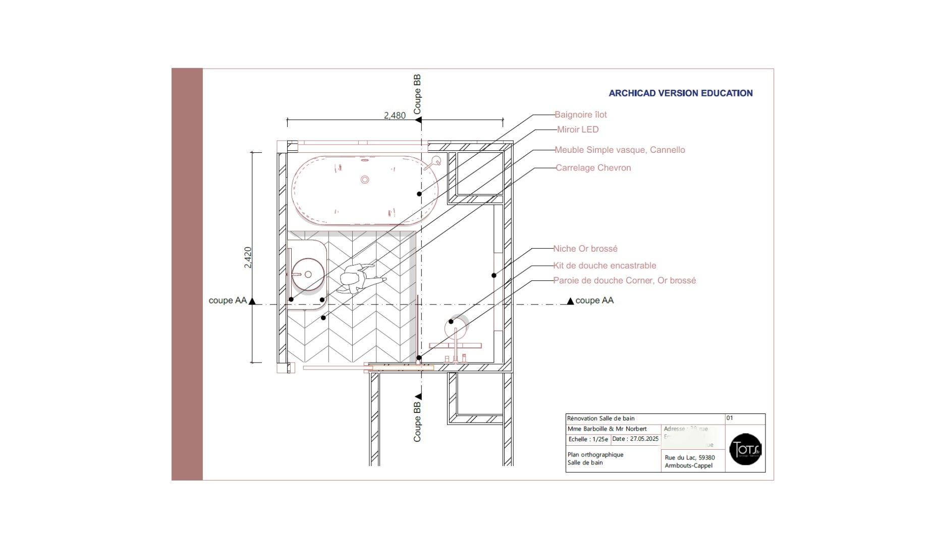
Le projet devait s’inscrire dans un espace de 6m2, il comprenait à la base une mansarde, une douche, une vasque simple, un coffrage, des points d’évacuation précis, et une estrade bien trop haute.
La cliente souhaitait une douche de 140 cm x 90 cm, une baignoire îlot et un meuble simple vasque avec une gamme colorimétrique d’aspect naturel.
Sur le plan technique, il fallait trouver un moyen de descendre cette estrade, trouver une place pour la baignoire, changer les matériaux vieillis et savoir jauger les couleurs et matériaux entre eux pour qu’aucun ne jure avec un autre.

Optimisation de l’aménagement
Comment tirer le meilleur parti d’un espace contraint ? Entre chaque élément structurel, il faut penser à garder de l’espace libre de circulation, afin que la salle de bain soit ergonomique et fonctionnelle, sans alourdir visuellement la pièce.
L’estrade a été abaissée et prolongée en L jusqu’à la fenêtre pour encadrer la baignoire et la douche, tout en intégrant discrètement receveur et tuyauterie. Une porte coulissante a remplacé la porte battante, libérant de l’espace et permettant l’installation d’un meuble vasque plus grand, tout en améliorant la circulation. ( plan )
Harmonie chromatique et matériaux intemporels
Choisir des matériaux intemporels évite de futurs travaux et garantit une salle de bain durable. Comment créer une harmonie sans surcharger l’espace ?
En misant sur des teintes douces : travertin beige clair pour l’estrade et les murs de la douche et de la baignoire, carrelage chevron pour la zone vasque, murs beige clair, sanitaire blanc et bois pour réchauffer l’ensemble.
Nous pouvons rajouter de la robinetterie dorée pour une touche d’élégance. La couleur viendra des éléments de décoration tels que le tapis, les serviettes, plantes, etc.
Le grès cérame, choisi pour son aspect, sa résistance à l’humidité et sa durabilité, offre un rendu à la fois moderne et intemporel.

Mobilier et équipements sanitaires : esthétisme et fonctionnalité
Comment choisir les équipements sans surcharger l’espace ? Nous avons opté tout d’abord pour une douche à l’italienne avec une paroi transparente dotée de détails or et une colonne de douche de couleur or brossé pour rappeler les détails de la paroi.
Ainsi, elle permettra d’ouvrir l’espace, comme la baignoire îlot en forme d’œuf avec sa robinetterie sur pied dans la même gamme que celle de la douche.
Par la suite, un meuble simple vasque en bois, suspendu, avec des lignes épurées, permettant d’alléger la pièce, avec une robinetterie dans la même gamme que ses poignets en or brossé rappellent de manière subtile à nouveau l’élégance de cette salle de bain.
Les détails qui font la différence
Une salle de bain bien conçue se révèle dans les détails. Bande LED intégrée au niveau de l’estrade, pour un effet tamisé, une niche discrète dans la douche et un miroir rétroéclairé.
Chaque élément a été pensé pour allier confort, esthétisme et fonctionnalité. Ces finitions discrètes transforment un aménagement standard en un projet sur mesure, pensé dans les moindres détails. Et vous, prêt à transformer votre salle de bain ?
Visitez le site www.tots.fr pour faire votre choix.